Nuestros Proyectos

Inicio / Proyectos

PORTAFOLIO DE PROYECTOS

En Grupo Azil hemos desarrollado numerosos proyectos en los sectores industrial, comercial y residencial. Nuestro compromiso con la calidad y la excelencia se refleja en cada uno de ellos. A continuación, presentamos algunos de nuestros proyectos más destacados.

Proyectos Ejecutivos

Hotel Villa Tábano Tulúm

Cliente: Grupo Industrial del Norte

Ubicación: Tulum, Quintana Roo

Año: 2021

Servicios realizados: Construcción, Carpintería, Instalaciones Eléctricas, Vidrios y Cristalería, Impermeabilización, Tablaroca, Pintura.

Este proyecto consistió en el diseño arquitectónico, creación de renders y construcción de un hotel tipo Villas. Se implementaron servicios integrales de construcción, carpintería especializada, instalaciones eléctricas, vidrios y cristalería, impermeabilización, montaje de tablaroca y acabado de pintura, asegurando así calidad y durabilidad en cada una de las Villas.

Planos Arquitectónicos

Planta Baja

Planta Baja

Tulum, Quintana Roo

Primer Nivel

Primer Nivel

Tulum, Quintana Roo

Segundo Nivel

Segundo Nivel

Tulum, Quintana Roo

Fachada Principal

Fachada Principal

Tulum, Quintana Roo

Corte Transversal

Corte Transversal

Tulum, Quintana Roo

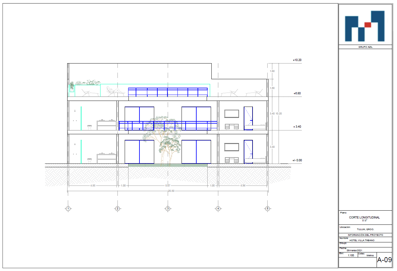
Corte Longitudinal

Corte Longitudinal

Tulum, Quintana Roo

Renders

Acceso Posterior

Acceso Posterior

Tulum, Quintana Roo

Fachada Lateral

Fachada Lateral

Tulum, Quintana Roo

Vista Segundo Nivel

Vista Segundo Nivel

Tulum, Quintana Roo

Vista Planta Baja

Vista Planta Baja

Tulum, Quintana Roo

Vista Aerea

Vista Aerea

Tulum, Quintana Roo

Fachada Principal

Fachada Principal

Tulum, Quintana Roo

¿Listo para iniciar tu proyecto?

Contáctanos hoy mismo para recibir asesoría personalizada y un presupuesto adaptado a tus necesidades.

Solicitar Presupuesto